Gs design & Drafting
Drafting in Byron Bay
Clear, fabrication-ready CAD drawings delivered with personalised service and local Northern Rivers knowledge for residential and commercial projects.
From Concept to completion
Drafting With Local Insight
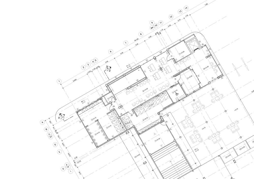
GS Design & Drafting provides professional CAD design and drafting services for residential and commercial projects in Byron Bay and surrounding areas. Our business supports builders, trades and project teams with clear, build-ready documentation. We focus on accuracy, compliance and practical outcomes that support real construction and fabrication processes.
Our drawings are created to help clients make informed decisions before work begins. We work with homeowners, designers, businesses and industry professionals across a wide range of project types. Every project is approached with care, transparency and attention to detail. Clear communication is prioritised from concept through to final drawings. To discuss drafting services in Byron Bay, call 0402 327 610.
Schedule IN A Consultation
Contact Us
Thank you for contacting GS Design & Drafting.
We will get back to you as soon as possible.
Oops, there was an error sending your message.
Please try again later.
Drafting services
Drawings With Purpose
Projects in Byron Bay often involve unique design considerations and careful coordination between trades. GS Design & Drafting offers a full range of drafting services designed to support clear, compliant and buildable outcomes. These services include CAD design, structural drafting, workshop and assembly drawings, fabrication-ready details, cut lists and welding and finishing documentation. Each service is delivered with a focus on clarity and practical use on site. We work closely with clients to ensure drawings reflect the project scope, site conditions and construction approach. This personalised process helps reduce uncertainty and supports smoother workflows. Clear documentation provides confidence for builders, fabricators and installers. Get in touch to discuss how our drafting services can support your Byron Bay project.
Custom joinery
Cabinet Makers in Byron Bay
Cabinet makers in Byron Bay rely on detailed drafting to support custom designs and precise installation. This service provides CAD drawings with accurate dimensions, layouts and cut lists tailored to bespoke cabinetry projects. Drawings are developed to support fabrication processes and coordination with other trades. Clear documentation helps ensure cabinetry integrates seamlessly into residential and commercial spaces. Practical drafting supports consistent quality from workshop production through to final installation.
Refined detailing
Joinery Renovations in Byron Bay
Joinery renovations in Byron Bay often involve design-led spaces and existing architectural features. Drafting services focus on clear layouts that help new joinery integrate smoothly with existing structures and finishes. Drawings account for site constraints, tolerances and construction requirements. This level of detail supports accurate fabrication and reduces on-site adjustments. Clear documentation helps renovation projects progress with greater confidence and control.
Thoughtful layouts
Small Business Fitouts in Byron Bay
Small business fitouts in Byron Bay benefit from drafting that balances design intent with practical use. This service provides clear drawings showing layouts, fixtures and construction details. Documentation supports coordination between trades and helps ensure the space functions as intended. Clear drafting allows business owners to visualise the finished result before construction begins. Well-prepared drawings support smoother fitouts and clearer communication throughout the build.
Operational Planning
Factory Floor Fitouts in Byron Bay
Factory floor fitouts in Byron Bay require careful planning to support workflows, safety and equipment placement. Drafting services provide detailed layouts that help organise machinery and operational zones. Drawings are created to suit industrial environments and staged installations where required. Clear documentation supports accurate installation and minimises disruption during works. Practical drafting helps ensure factory spaces operate efficiently once complete.
Build precision
Machinery & Fabrication in Byron Bay
Machinery and fabrication drafting in Byron Bay supports accurate builds and safe assembly. Drawings include layouts, welding details and finishing notes developed for real-world fabrication processes. Clear documentation helps fabricators understand how components fit together before production begins. This supports efficient workflows and reliable installation outcomes. Practical drafting helps ensure machinery is ready for use once installed.
Technical clarity
Manufacturing Drawings in Byron Bay
Manufacturing projects in Byron Bay rely on precise documentation to support fabrication and production. Manufacturing drawings include detailed dimensions, assembly information and fabrication notes. These drawings help ensure consistency and clear communication between designers and workshops. Accurate documentation supports efficient production and reduces the risk of errors. This service suits both one-off and ongoing manufacturing requirements.










